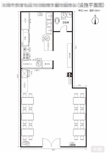
琳姐在北京经营一家小餐馆,装修一切准备就绪后开始办理食品经营许可证,昨天周日来我们公司了,因为她上一家的记账也放在我们家,所以都是老顾客了,比较熟悉,她来问她家这个小餐馆的店铺平面图怎么画,能不能帮她画好,我这一听,赶紧帮她把平面图画出来了。

很多老板觉得平面图很难画,其实不然,很多普通画图软件也能完成,图也并不复杂,只要清楚标明厨房、仓库、洗手池、消毒区、收银台等位置,再配上尺寸和比例就能达到要求。
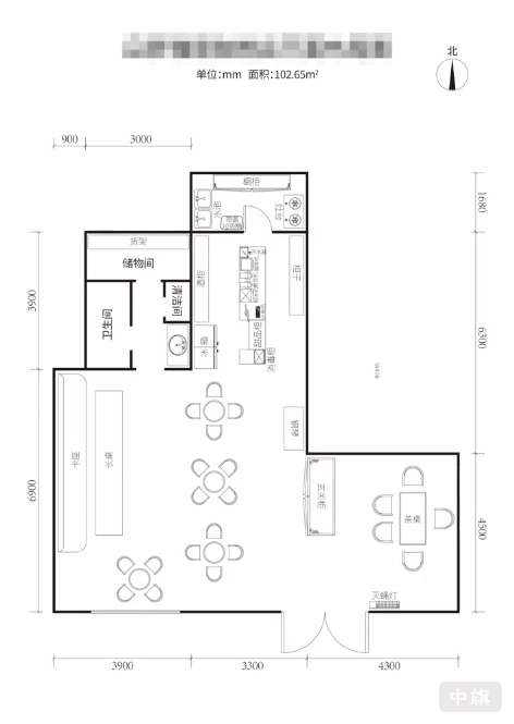
食品经营许可证申请中的平面图是监管部门判断店铺空间布局是否合理的重要依据,它能让审核人员清楚看到各功能区分布、食品加工流程及人员活动路线是否符合卫生管理要求。

平面图上通常需要展示营业区、厨房、清洗区、储藏区、卫生间等区域,并标明出入口、通风设备、水源和排水口位置。
常见的绘图工具包括:AutoCAD、亿图图示、Visio、SketchUp、或者简单的WPS绘图、Word自带绘图功能,对于小型店铺使用电脑上的亿图图示或WPS绘图功能就足够完成。

操作时先画出店铺外形轮廓然后用矩形、线条和文字标明各功能区域最后标注尺寸。
监管部门需要知道各区域的大小和相对位置,尤其是厨房、储藏区和洗手区等关键位置。
建议使用统一比例绘制,按1:100比例标注,每个功能区的长宽、门窗位置、排水口方向都要在图中标注清楚,如果是租赁场地,房东提供的建筑图纸也可作为参考。

在北京办理食品经营许可证时,平面图通常需要提交电子版文件(PDF或JPG格式),部分区还要求打印纸质版随材料一并提交,申请人先准备电子版,上传系统或发送给审批人员审核,再打印一份纸质版与申请表、租赁合同等资料一并提交。
本文链接: https://www.zqsws.com/mfwz/2744.html 未经授权,禁止转载。
下一篇:企业申请106号段需要哪些资质?